Find a Property

3 Bedroom Duplex Apartment For Sale
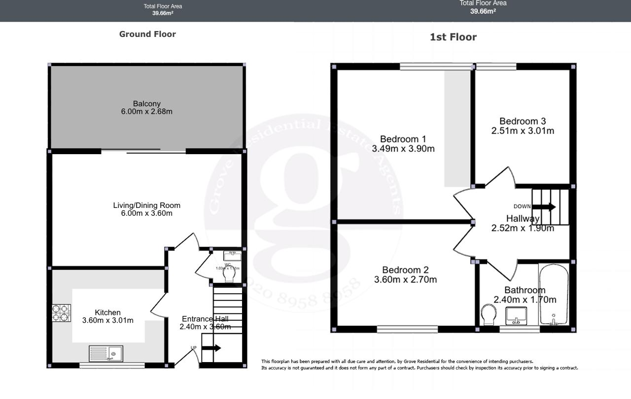
Leeming Road, Borhamwood, Hertfordshire, WD6 4EB
£325,000 Sold

Key Features

  • 3 Bedroom Duplex Flat
  • Separate Kitchen
  • Living/Dining Room
  • Balcony
  • Guest WC & Family Bathroom
  • Gas Central Heating & Double Glazing
  • Central Location
  • Sole Agents

Summary

A spacious three bedroom duplex flat situated above shops on the popular Leeming Road, within close proximity to local transport links. The property boasts a recently refurbished separate eat in kitchen, guest wc and a good sized living room with sliding doors to the private balcony. The first floor comprises three spacious bedrooms as well as a family bathroom. Unrestricted parking to the rear. Private Balcony. Loft access. Ideal for first time buyers and buy to let investors. View now via sole agents Grove Residential.

Tenure: Leasehold - 82 years remaining
Sevice Charge: £1,035.00 approx per annum tbc via solicitors
Ground Rent: £10 tbc

Request a Viewing

Additional Information

For further information on this property please call 020 8958 8958 or e-mail [email protected]

The information contained within this website is for guidance purposes. The particulars have been prepared with all due care and attention, for the convenience of intending purchasers/tenants. Their accuracy is not guaranteed and they do not form any part of a contract. Purchasers/tenants should check by inspection the accuracy of the particulars prior to signing a contract.

Share this property

Administration Fees

Interested in this property?

Telephone 020 8958 8958

Enquire/request a viewing

Share this property

Zoopla Primelocation All Agents Facebook